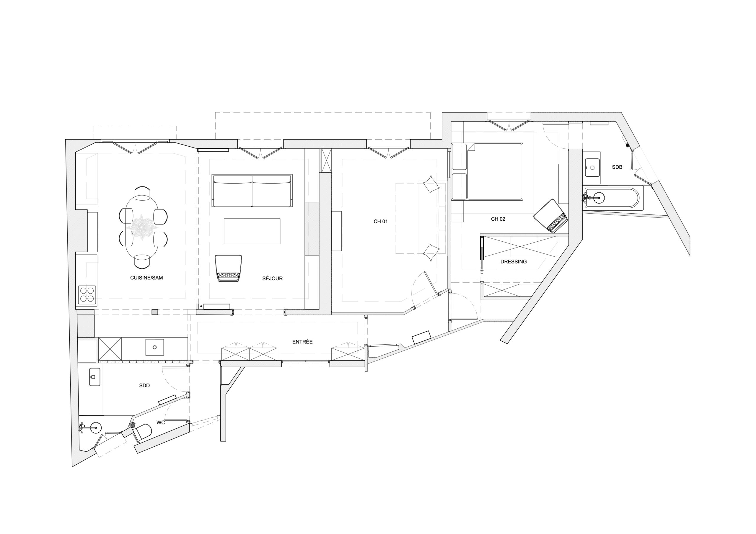
EDOUARD

Date
Surface
Type
Photos
2024
85m²
Appartement
Sabine Serrad
Plans
Avant/
Après