DES BUTTES

Date
Surface
Type
Photos
2024
62m²
Rénovation totale
Sabine Serrad
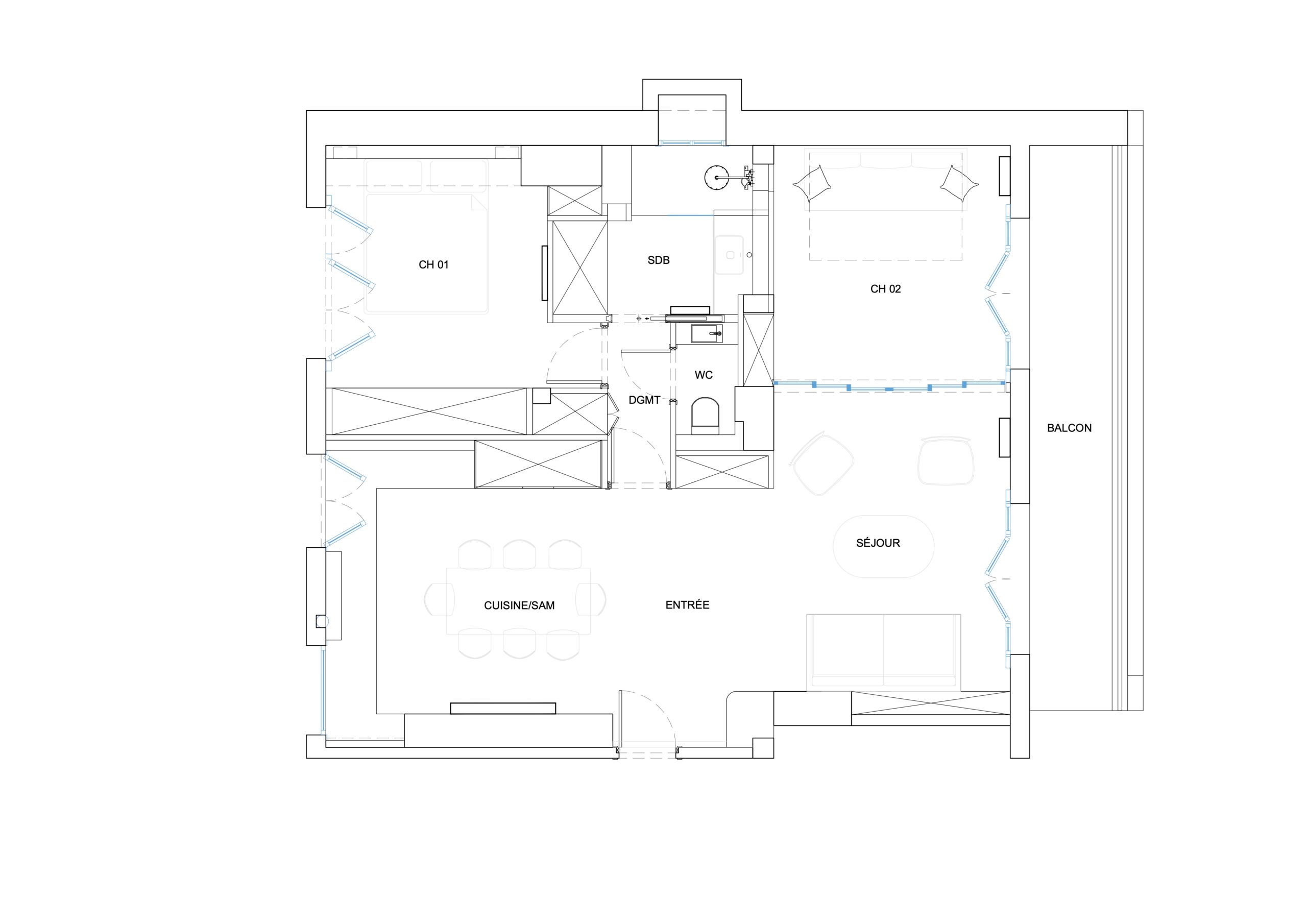
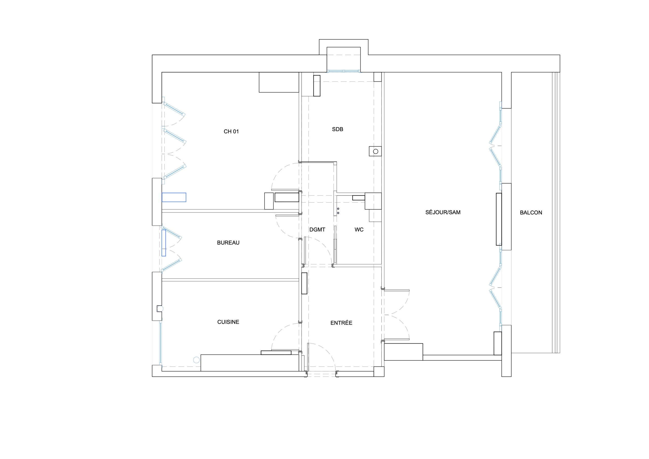
Plans
Avant/
Après